Les 3 sœurs

Projet académique - Design de l’environnement UQAM.
En collaboration avec - Mathieu Meunier.

Ce projet académique, intitulé « La Maison de Ville », vise à concevoir des unités d'habitations intégrant un programme connexe au rez-de-chaussée, le tout prenant la forme de « plex ». L'emplacement du projet fictif correspond à un lieu réel vacant qui a été visité dans le cadre du cours d'Atelier 1:100, permettant une immersion dans le contexte du lieu sélectionné.

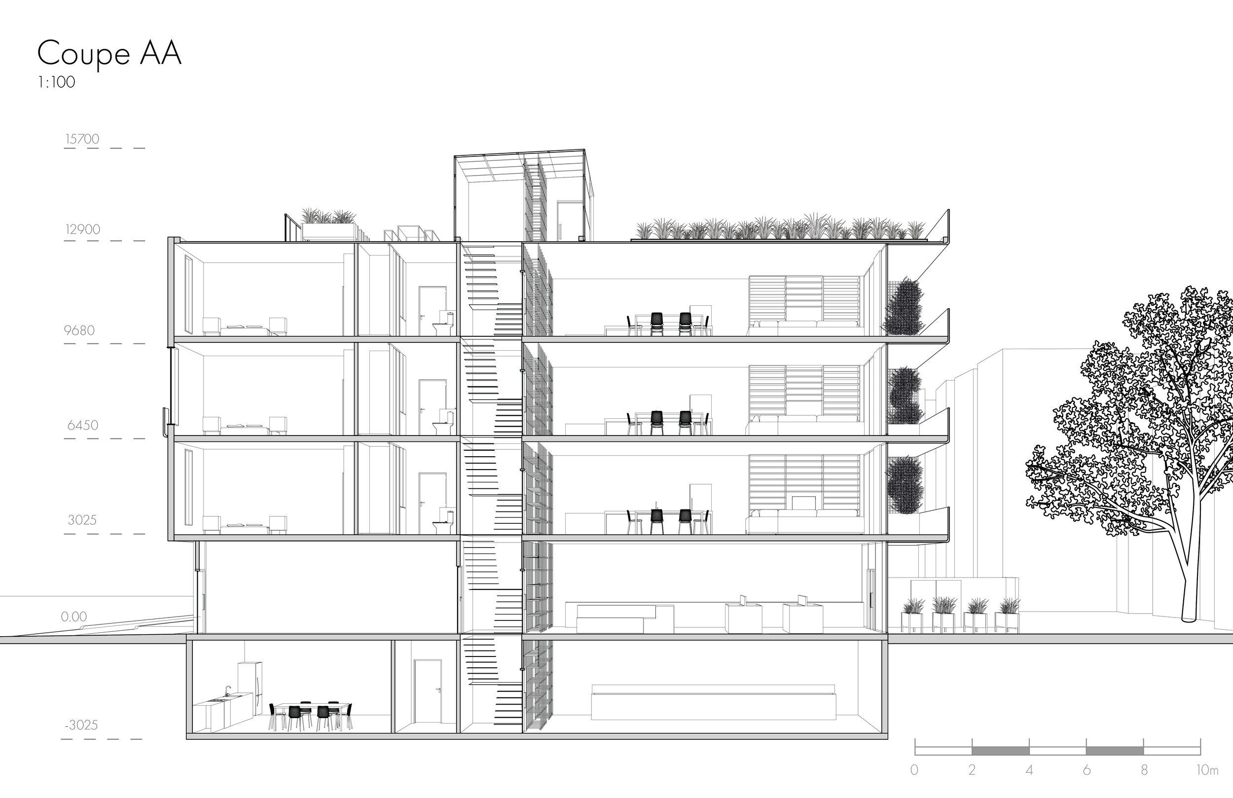
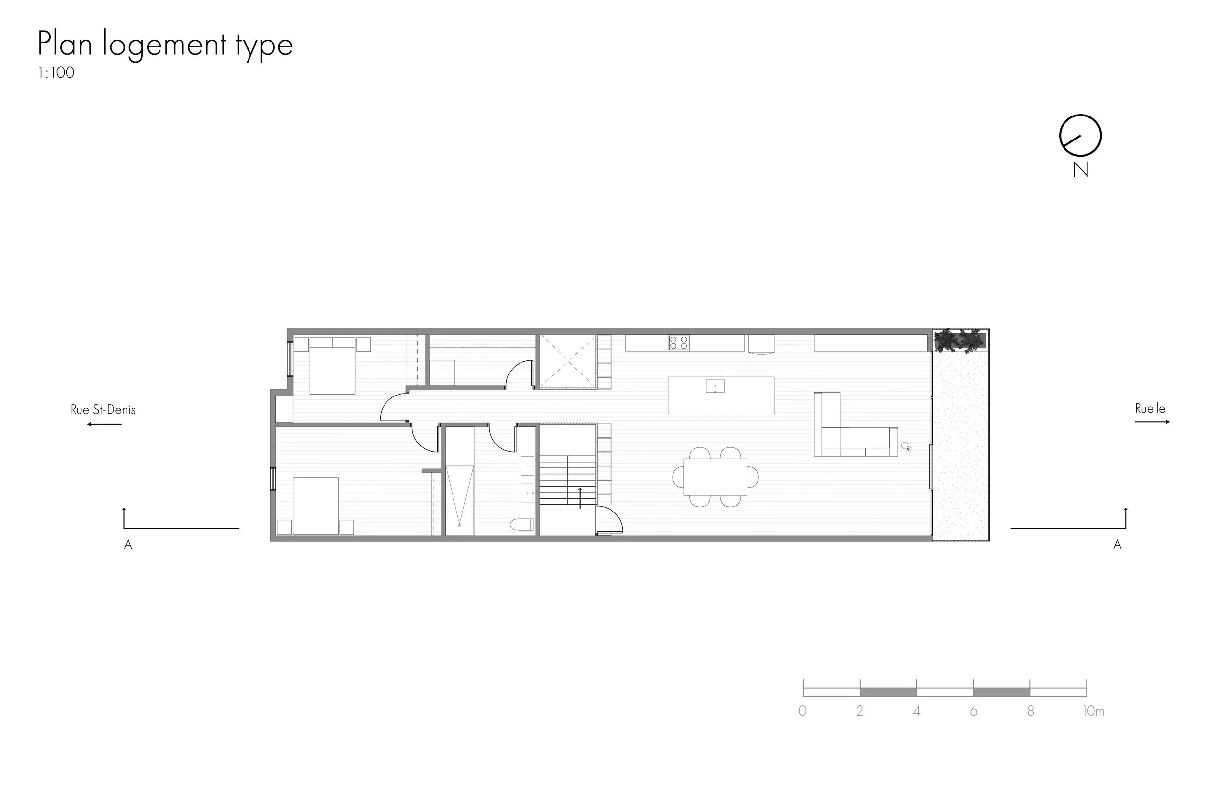
Dans le domaine de l’agriculture, il est reconnu que le maïs, la courge et le haricot fonctionnent en symbiose. Chacun profite de l’autre sans jamais se nuire ; elles s’entraident et grandissent ensemble. Les peuples autochtones surnommaient les 3 plantes formant cette collaboration « les trois sœurs ». À l’image de cette relation symbiotique, les habitations proposées sur la rue Saint-Denis tentent de recréer un milieu de vie collaboratif. Trois logements de type 4 et demie sont donc proposés en plus d’un programme connexe commercial au rez-de-chaussée axé sur la vente et la production d’aliments locaux. 

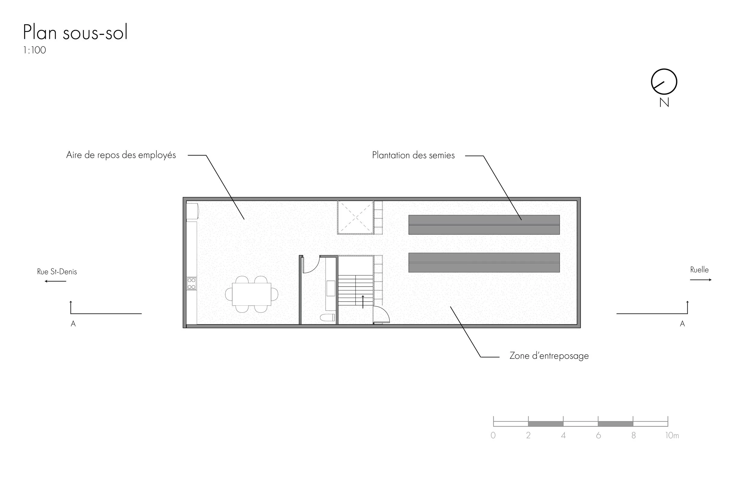
La stratégie mise en place pour remédier au manque de lumière au cœur des maison de style « plex » a consisté à créer une faille centrale. Cette faille remplit plusieurs fonctions en servant de cage d'escalier, de puits de lumière et d'axe structurant l'organisation des pièces et la circulation à l'intérieur du bâtiment. Cet axe divise le bâtiment du sous-sol au toit, traversant à la fois les espaces commerciaux et résidentiels. Dans les logements, la faille sépare les espaces privés de la zone commune principale, tandis qu'au niveau du toit, elle délimite la section du potager réservée aux habitants de celle dédiée au commerce. Au sous-sol, elle sépare la zone de repos des employés de la zone d'entreposage et de plantation de semis. 

En termes de matérialité, la brique a été choisie afin de reprendre une typologie montréalaise typique et de s’inscrire dans une certaine continuité avec les bâtiments voisins sur le lot. Une brique blanche a été choisie afin de créer une pause et une neutralité dans la cacophonie visuelle des environs. Des détails en acier corten au niveau des garde-corps viennent rythmer la façade et suggèrent, tant au niveau de la couleur que de la texture, une matérialité plus rustique évoquant un certain vécu. 

Précédent
Précédent

Charrette CCA 2024

Suivant
Suivant

La cabane idéale